Descripción
                    
                        Edificio Costanera Village, en construcción. Complejo de 5 torres con amenities a minutos del centro de Carrasco.
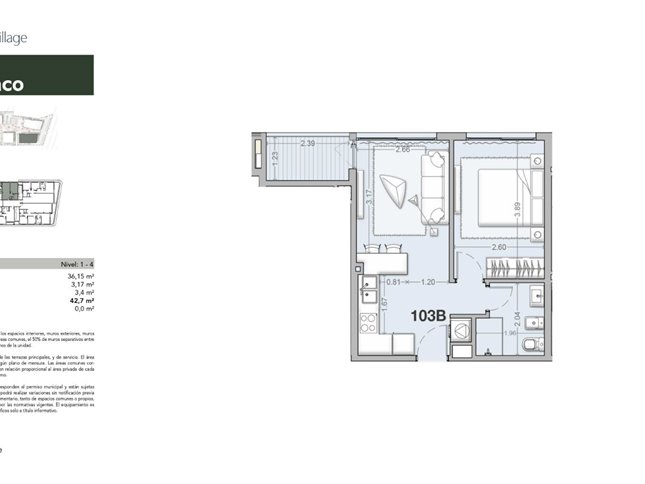
Comodo apartamento de un dormitorio, living comedor con salida a terraza. Cocina definida. Un baño completo.
Calefacción por losa radiante eléctrica. Acepta gatos. 
El complejo cuenta con áreas exteriores de juegos para niños, gimnasio al aire libre. Piscina, barbacoa, salón usos múltiples, área de juegos interior para niños, gimnasio cerrado con lockers, lugar de juegos, lavadero, área de handy man. A pasos de la playa y del parque y a 10 minutos del centro de Carrasco.
contrato minimo dos años. Garantía de seguros.
ocupación 1/11
Consúltanos por esta y otras unidades en alquiler a estrenar en Costanera Village
Fotos de apto modelo
                        
                    
                 
                
                
                    
                    Detalles de la Propiedad
                    
                        - Tipo: 
                            Apartamento
- Metros edificados:  36
- Area total:  42 m²
- Construído:  2022
- Estado : A Estrenar
- Gastos comunes : $5.000
- Dormitorio:  1
- Baño:  1
- Garaje capacidad: 1
- Disposición: Frente
- Orientación: Este
 
                    
                 
                
                
                    Características
                    - · Cocina definida
- · Losa Radiante
- · Cochera
- · Plantas: 1
- · Parrillero
- · Vigilancia
- · Portero
- · Lavadero
- · Barbacoa
- · Piscina
- · 3 mts de frente
- · Terraza
- · Piso 4
- · Placares
- · Mascotas
- · Gimnasio
 
                                
* Las superficies de los apartamentos incluyen muros divisorios hasta su eje, ductos, terrazas, balcones, prorrateo de área común, circulación vertical exclusivamente de planta.
* Todas las medidas enunciadas son meramente orientativas, las medidas exactas serán las que se expresen en el respectivo título de propiedad de cada inmueble. Todas las fotos, imagenes y videos son meramente ilustrativos y no contractuales. Los precios enunciados son meramente orientativos y no contractuales. 
* Los datos expresados son los informados por el propietario y no son responsabilidad de la inmobiliaria